案例賞析 | 獨取一份寧靜,都市中的慢生活

忙碌一天,耳畔都是生活的喧囂,寧靜似乎已經距離自己很遠,很遠。想吃一頓安靜的晚餐,想看一集追了很久的電視劇,于是,推開門,迎接自己的慢生活...
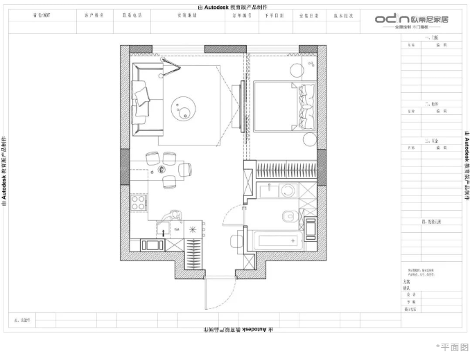
今天分享的是一套40平米的小戶型LOFT公寓裝修案例,對于很多家庭來說40平的空間太小了,更別提要實現家居生活的所有功能了。但這套超小戶型,不僅擁有廚房、客廳、臥室等所有功能,還有充足的收納空間,空間利用真正做到了極致。
# 時尚LOFT公寓 #設計理念
面積雖小,但是內件一應俱全,它可以滿足現代青年的住房要求。現如今的單身公寓設計一般采用現代風格為主,裝修的色彩、結構都追求明快簡潔,使人與空間渾然天成。設計師選用低飽和度的暖色作為空間的主色調,打造了具有美感與舒適感的空間。

# 時尚LOFT公寓 #空間改造
①將玄關空間加以利用,設計一組高柜,展示之余便于擺放其他物品。
②打造門墻柜一體化,將美學與工藝完美糅合,達到全屋風格的協調統一。③廚房采用膚感白原木廚柜與巖月白墻面相搭設計,加上極具設計性的吊燈,打造設計的層次感與藝術性。

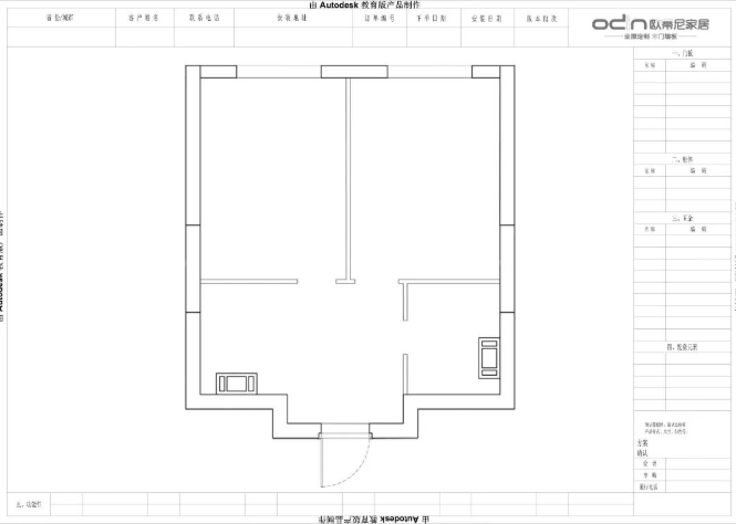
*原始圖

# 時尚LOFT公寓 #空間解析
麻雀雖小,五臟俱全。
客廳中,原木色作為這套公寓的主要配色個性十足,營造了精致高級的空間氛圍。大面積的落地窗設計恰到好處,給人明亮的視覺感受。淺色系的空間在陽光的照耀下更顯干凈純粹。

廚房是整個家中使用頻率最多的一個重要場所,承載著一家人的飲食。設計師采用L型櫥柜設計,還增加了定制高柜,擴容收納的同時,設計出一種寬闊的視覺感受。


極簡門墻柜一體化設計,將美學與工藝完美糅合,達到全屋風格的協調統一。在滿足消費者家裝需求的同時,更節省裝修時間,深受消費者的青睞與追捧。

臥室中淺色的床品柔軟細膩十分舒適,大面積的落地窗搭配白色的薄紗,保證室內的光線明亮而柔和。不同材質的融合讓空間更具精致感。
擁抱陽光?,淺吻微風,輕撫綠葉。當自己擁有一個夢想中的房子,就讓美好的生活離自己更近一些,也慢下來,欣賞身邊的小美好~~

訂單查詢
返回列表